fbpx

Projetos de Casas

Projetos de Casas

Valorizamos a arquitetura que aprofunda e celebra as raízes locais com sensibilidade e consciência socioambiental. São 17 projetos de casas exclusivos desenhados pela OPY Arquitetura, que variam de 150 a 600m2 de área coberta.

 

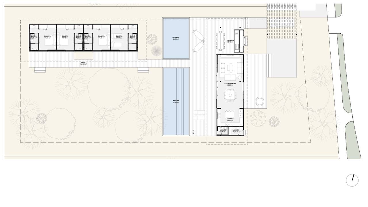
T1_5 Varanda Longa | 5 suítes

Área total

588.75m2

Área fechada

201.76m2

Área aberta

201.76m2

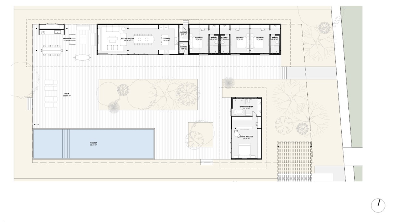
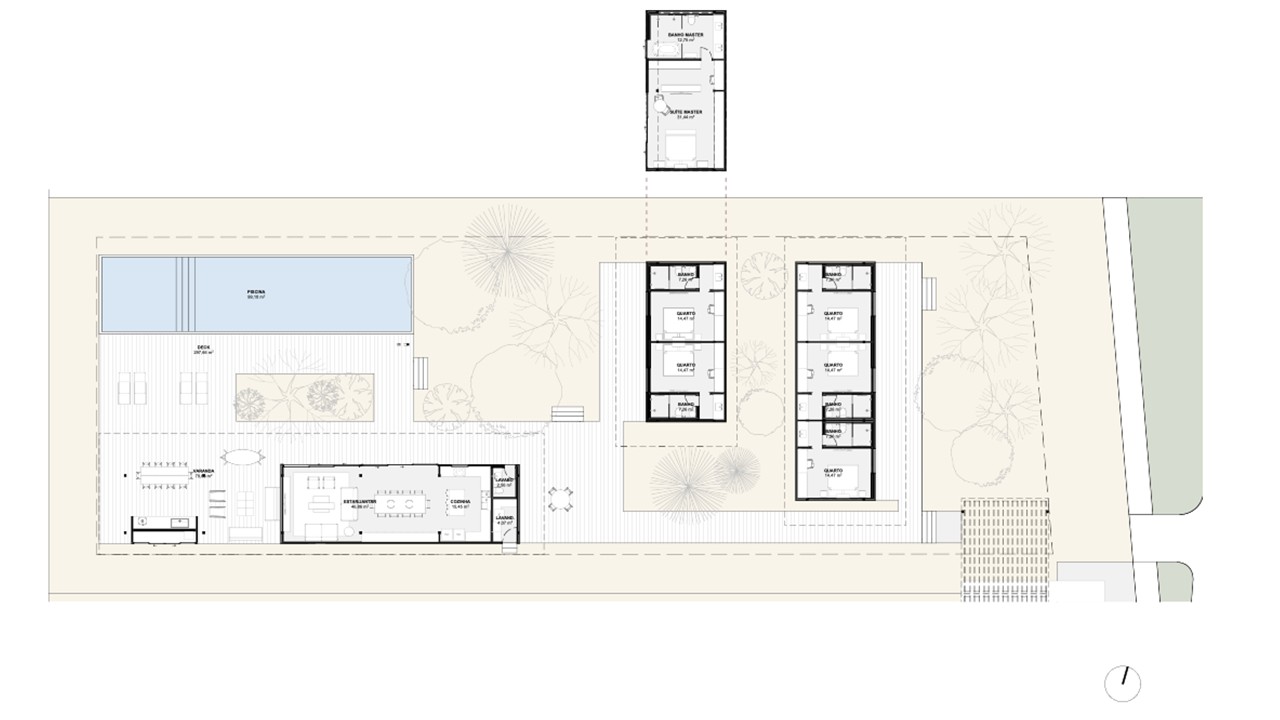
T3_5 Duas Vistas | 5 suítes

Área total

671.97m2

Área fechada

202.84m2

Área aberta

175.25m2

Palma | 4 suítes

Área total

320m2

Área fechada

182m2

Área aberta

95m2

Paineira | 4 suítes

Área total

318m2

Área fechada

239m2

Área aberta

79m2

Maria do Nordeste | 4 suítes

Área total

231m2

Área fechada

158m2

Área aberta

73m2

Arapaçu | 4 suítes

Área total

245m2

Área fechada

166m2

Área aberta

79m2

Araripe II | 4 suítes

Área total

286m2

Área fechada

210m2

Área aberta

76m2

Camocim | 4 suítes

Área total

309m2

Área fechada

187m2

Área aberta

123m2

T1_4 Varanda Longa | 4 suítes

Área total

503.06m2

Área fechada

176.81m2

Área aberta

104.73m2

Araripe I | 4 suítes

Área total

384m2

Área fechada

225m2

Área aberta

159m2

T2_4 Jardim Reservado | 4 suítes

Área total

614.77m2

Área fechada

177.89m2

Área aberta

155.56m2

T4 Frente Viva | 4 suítes

Área total

581.68m2

Área fechada

176.81m2

Área aberta

114.98m2

T5_4 Ala Master | 4 suítes

Área total

753.52m2

Área fechada

201.76m2

Área aberta

149.63m2

 

Tucaninho da Serra | 3 suítes

Área total

188m2

Área fechada

135m2

Área aberta

53m2

T2_5 Jardim Reservado | 3 suítes

Área total

669.77m2

Área fechada

202.84m2

Área aberta

174.62m2

 

Martim Pescador | 2 suítes

Área total

170m2

Área fechada

117m2

Área aberta

29m2